PROPERTY LOCATION
232 Circle Brook Dr,
Monroe, VA 24574 (Amherst Co.)
AUCTION LOCATION
Online Auction Only: Ends Wednesday, March 11, at 12:30 pm
Details
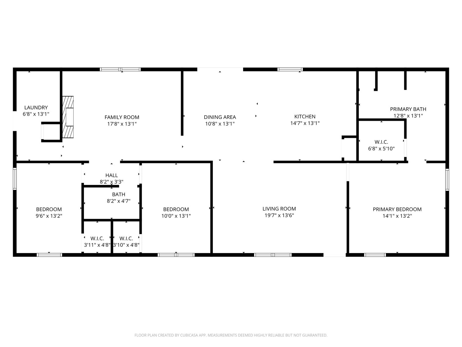
Selling to the highest bidder! Great residential opportunity in Amherst County! A 3 bedroom 2 bath doublewide home on a spacious 5.3 acres with a 2-bay workshop and storage buildings.
- 3BR 2BA doublewide home
- 1792 sq.ft.
- 3 bedrooms
- 2 full baths
- 1997 home
- Spacious kitchen and dining room
- Living room 20x14
- Family room w/ fireplace 18x13
- Bedroom 1: 14x13 w/ spacious attached bath and walk-in closet
- Bedroom 2: 10x13
- Bedroom 3: 10x13
- Back deck
- Vinyl siding
- Heat pump-NEW*** Just replaced with warranty!
- Well and septic
- Several Outbuildings
- 2-bay shop, metal building 552 sq.ft., 2 overhead doors, concrete floor, electric
- Pole shed for storage or workshop
- Shed for storage
- Dog lot
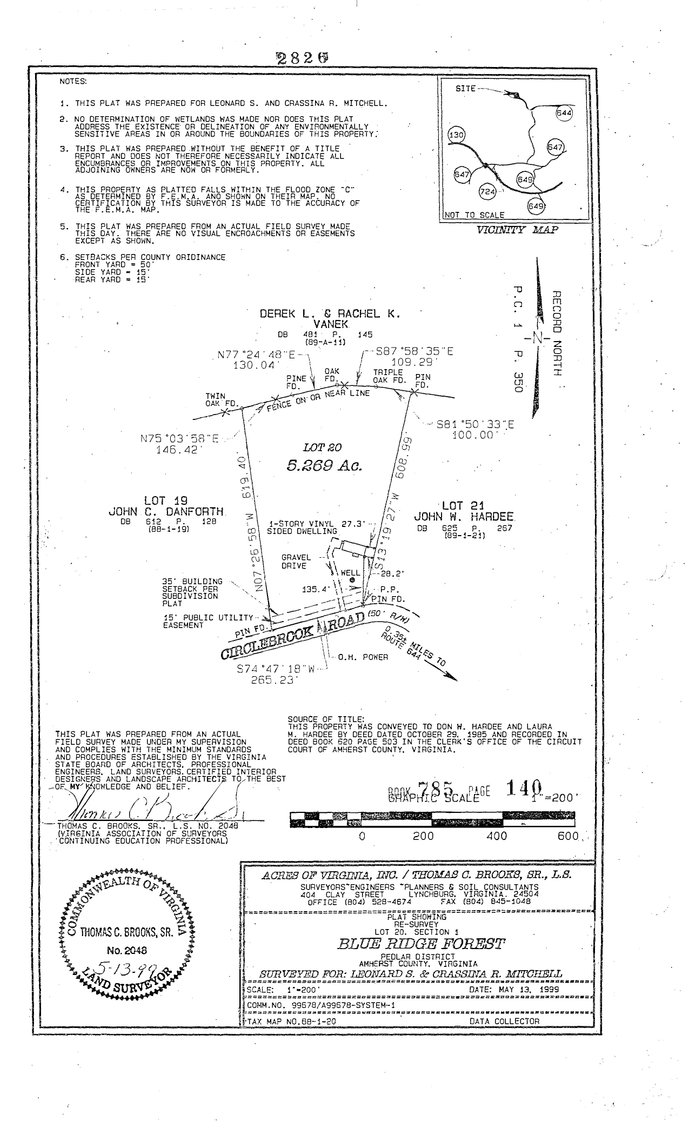
- 5.269 acre lot per survey
- Nicely wooded
- 265' of frontage on Circle Brook Rd
- Close to the George Washington National Forest and the Blue Ridge Parkway
- 15 miles from Sheetz on US-29Business in Madison Heights
- 25 miles from Liberty University
- 21 miles from Natural Bridge
- Minutes from several popular nature areas
- Zoned A1 Agricultural
DIRECTIONS TO PROPERTY
- From Madison Heights (Sheetz): take VA-130W 12mi to RIGHT on Maple Creek Rd (649). 0.5mi to LEFT on Minors Branch Rd (647). 0.6mi to RIGHT on Ramsey Rd (644). 1.6mi to LEFT on Circle Brook Rd. 0.3mi to 232 Circle Brook on right.
- From Big Island: US-501N 4mi to RIGHT on VA-130E. 5.4mi to LEFT on Minors Branch Rd (647) 0.8mi to LEFT on Ramsey Rd (644). 1.6mi to LEFT on Circle Brook Rd. 0.3mi to 232 Circle Brook on right.
OPEN HOUSE DATES
- Wednesday, Feb.25 from 3-5PM
- Sunday, Mar.1 from 1-3PM
- Sunday, Mar.8 from 1-3PM
- Agents - please call Mike 434-660-5159 or Micah 434-610-3182 to show. Coded lockbox available.
TERMS SUMMARY
5% buyer's premium. 10% deposit due at auction. Closing on or about 30 days. Sells to the highest bidder. Click on "Terms" tab for full terms and conditions.
CONTACT
Mike Torrence
Torrence, Read, & Forehand Auctions
101 Annjo Ct, Forest, VA 24551
(434) 847-7741 Office
(434) 660-5159 Mobile
mike@trfauctions.com
or
Micah Torrence
(434) 610-3182
micah@trfauctions.com
Manufactured Home on 5.27 Acres at 232 Circle Brook Dr, Monroe, VA
Auction Site:
This is an "Online Only" Auction. Bids can be placed at bid.trfauctions.com or by calling the auction company at 434-847-7741 ext.2
Terms:
Property sells "AS-IS" without warranties of any kind. Potential Buyers must perform such independent investigations with respect to the Property as they deem necessary to verify information provided by Auction Company.
Warranty:
All information provided by Auction Company is deemed reliable but is not warranted. The information provided by the Auction Company is subject to verification by all parties relying on it. No liability for its accuracy, error or omission is assumed by the Auction Company.
Title:
Seller will convey title by General Warranty Deed free and clear of all liens.
Registration:
Bids will be accepted only from registered bidders. You may register on our website or phone app. A credit card and/or valid form of identification (i.e. driver's license) may be required to register.
ONLINE BIDDING:
This in an online ONLY auction. Bidding will close at 12:30 PM on Wednesday, March 11, 2026. There is a soft close meaning if a bid is placed in the last seconds of the auction, the bidding on that item will be extended for 120 seconds until no further bidding occurs.
Approval:
High bid subject approval.
Buyer's Premium:
A 5% buyer's premium will be added to the high bid to determine the final sales price.
Contract:
The contract will be emailed to winning bidders' for e-signature shortly after the auction concludes. Please sign and return within 24 hours.
Deposit:
Deposit equal to 10% of final contract price (bid price plus buyer's premium) due within 48 hours of auction close. Bidders may overnight deposit, wire transfer funds, or drop check off at 101 Annjo Ct, Forest, VA.
Closing:
Balance of Purchase Price shall be due at closing on or about 30 days after the sale.
Agency:
The auction company and its representatives represent the sellers.

